View the embedded image gallery online at:
https://mail.grata-eco-house.com/proekty/proekty-thw/thw-3#sigProIddd1534f047
https://mail.grata-eco-house.com/proekty/proekty-thw/thw-3#sigProIddd1534f047
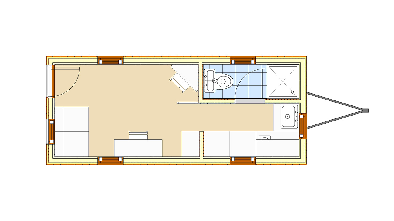
Tiny house on wheels 3
| Living spaceь | 15,7 m2 |
| Length | 6,12 m |
| Width | 2,56 m |
| Sleeping places | 2 |
| Price from | 24990,00 EUR |
Please call for more detailed information:
+371-670-16-500

